Категории

Кран шаровой газовый стандартнопроходной специальная серия MAX фланцевый

Характеристики

Макс. температура (Т) °С.: до +80 °С

Мин. температура (Т) °С.: до -60 °С (исп. ХЛ)

Класс герметичности: Класс «А» ГОСТ 9544-2015

Срок службы: 40 лет*

Гарантийный срок: 10 лет

Материалы корпуса: Сталь 09Г2С

Проход: Стандартнопроходной

Присоединение: Фланцевое. Присоединительные размеры фланцев: ГОСТ 33259-2015

Рабочая среда:

Природный газ, сжиженный  углеводородный газ и другие газообразные среды, неагрессивные для материалов деталей крана.

Серия кранов с усовершенствованными техническими характеристиками. Передовые инженерные решения и высококачественные материалы обеспечивают максимальную надежность, долговечность и эффективность на трубопроводах с жидкими и газовыми средами

- Краны имеют все необходимые сертификаты и разрешения

- Уникальная конструкция ремонтопригодной горловины с эффектом самоуплотнения позволяет восстановить уплотнения без демонтажа шарового крана

- Маркировка индивидуального номера крана наносится нестираемым способом согласно ГОСТ 4666-2015 и позволяет идентифицировать кран на протяжении всего срока службы

- Конструкция крана испытана на герметичность в сложных условиях путем сжатия, растяжения и изгиба согласно международным нормам

Примечания:

Все краны до DN 250 включительно поставляются в комплекте с рукояткой. По заказу могут поставляться с редуктором. Краны DN 300 и более

поставляются в комплекте с механическим редуктором по умолчанию.

Iso – по умолчанию установлен iso-фланец

* При условии соблюдения правил эксплуатации.

Модификации

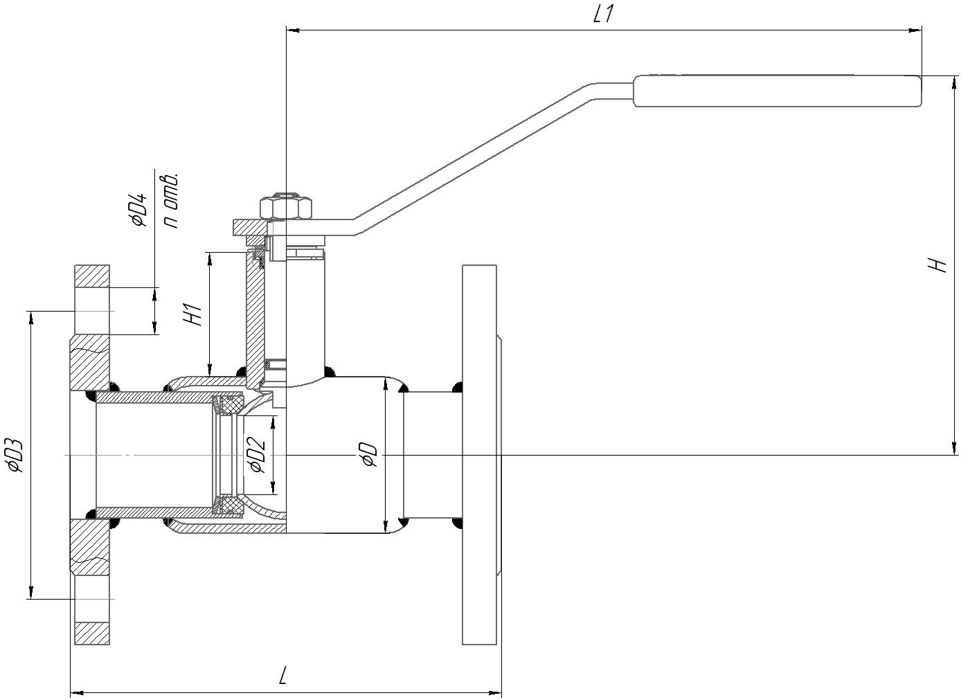
Артикул DN PN L L1 H H1 D D2 D3 D4 n отверстий Вес, кг
98320015 MAX 15 40 120 143,8 138,8 45,8 42 10 65 14 4 1,88
98320020 MAX 20 40 120 143,8 142,1 49,1 42 15 75 14 4 2,22
98320025 MAX 25 40 140 143,8 144,7 48,7 48 18 85 14 4 2,62
98320032 MAX 32 40 140 143,8 149,3 48,8 57 24 100 18 4 3,66
98320040 MAX 40 40 165 243 145 47,6 60 24 110 18 4 4,66
98320050 MAX 50 40 180 243 153,5 48,1 76 40 125 18 4 5,99
98320065 MAX 65 16 200 243 159,5 47,6 89 48 145 18 4 8,19
98320080 MAX 80 16 210 277,6 193,8 69,4 114 63 160 18 4 10,65
98320100 MAX 100 16 230 277,6 203,5 69,6 133 75 180 18 8 13,76
98320125 MAX 125 16 350 526 179,3 61,3 180 100 210 18 8 23,93
98320150 MAX iso 150 16 380 526 195,8 58,3 219 125 240 22 8 30,3
98320200 MAX iso 200 16 450 526 216 51,5 273 148 295 22 12 50,7
98320250 MAX iso 250 16 530 1019,5 275,6 51,8 351 200 355 26 12 90,15
98320300 MAX iso 300** 16 750 - 431,5 103,5 426 240 410 26 12 170,51
98320350 MAX iso 350** 16 750 - 512 101 530 300 470 26 16 276,87
98320400 MAX iso 400** 16 880 - 512 101 530 300 525 30 16 351,87
98320500 MAX iso 500** 16 990 - 635 105 630 390 650 33 20 615,00
98320600 MAX iso 600** 16 1173 - 695 104 820 500 770 39 20 1037,39