Категории
Кран шаровой полнопроходной специальная серия MAX фланцевый
Характеристики
Макс. температура (Т) °С.: до +200 °С
Мин. температура (Т) °С.: до -60 °С (исп. ХЛ)
Класс герметичности: Класс «А» ГОСТ 9544-2015
Срок службы: 40 лет*
Гарантийный срок: 10 лет
Материалы корпуса: Сталь 09Г2С
Проход: Полнопроходной
Присоединение: Фланцевое. Присоединительные размеры фланцев: ГОСТ 33259-2015
Рабочая среда:
Теплосетевая вода, нефтепродукты, ГСМ и другие рабочие среды, неагрессивные для материалов
деталей крана.
Серия кранов с усовершенствованными техническими характеристиками. Передовые инженерные решения и высококачественные материалы обеспечивают максимальную надежность, долговечность и эффективность на трубопроводах с жидкими и газовыми средами
- Краны имеют все необходимые сертификаты и разрешения
- Уникальная конструкция ремонтопригодной горловины с эффектом самоуплотнения позволяет восстановить уплотнения без демонтажа шарового крана
- Маркировка индивидуального номера крана наносится нестираемым способом согласно ГОСТ 4666-2015 и позволяет идентифицировать кран на протяжении всего срока службы
- Конструкция крана испытана на герметичность в сложных условиях путем сжатия, растяжения и изгиба согласно международным нормам
Примечания:
Все краны до DN 250 включительно поставляются в комплекте с рукояткой. По заказу могут поставляться с редуктором. Краны DN 300 и более
поставляются в комплекте с механическим редуктором по умолчанию.
Iso – по умолчанию установлен iso-фланец
* При условии соблюдения правил эксплуатации.
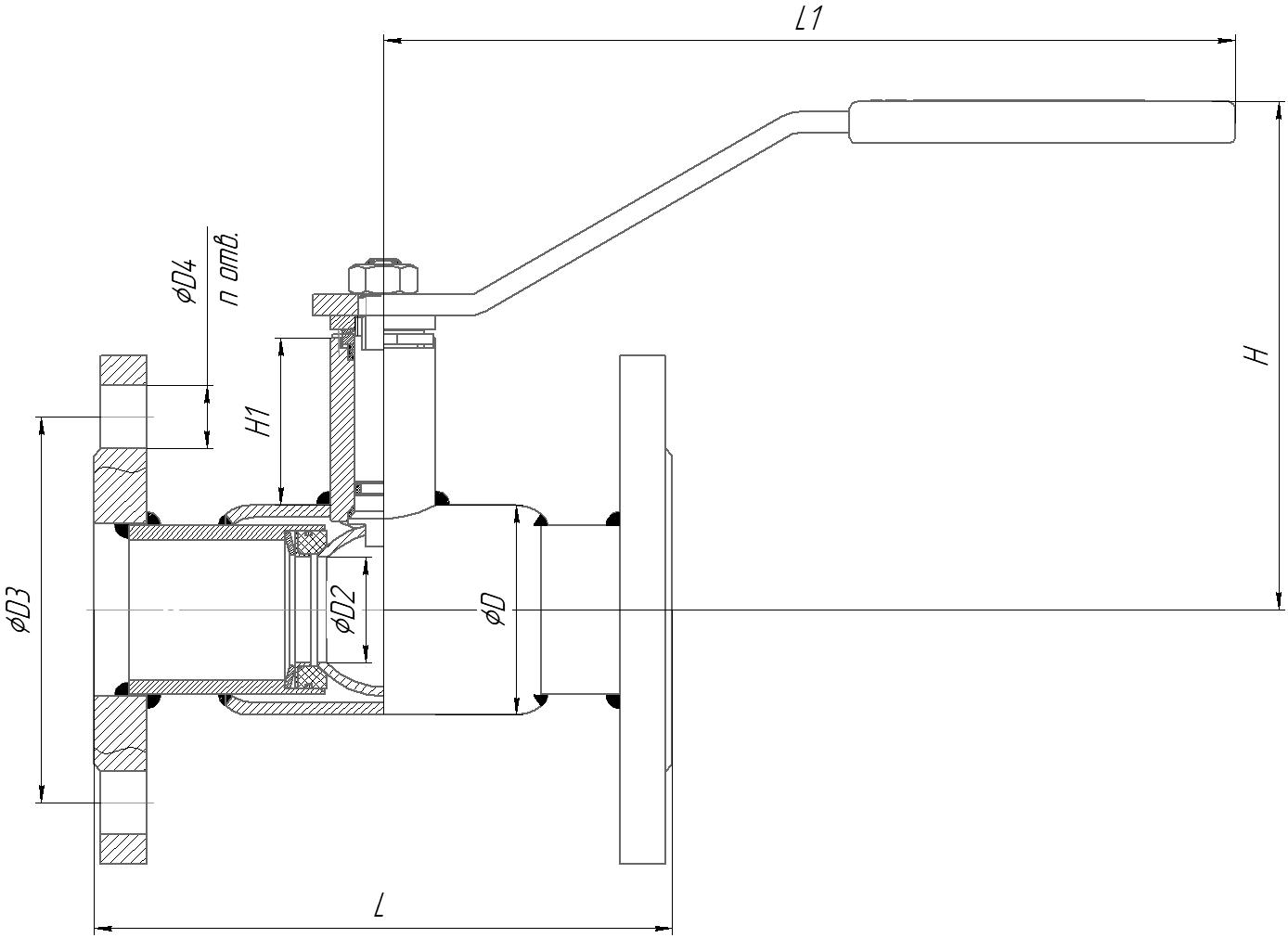
Модификации
| Артикул | DN | PN | L | L1 | H | H1 | D | D2 | D3 | D4 | n отверстий | Вес, кг | |
|---|---|---|---|---|---|---|---|---|---|---|---|---|---|
| 99320015 MAX | 15 | 40 | 130 | 143,8 | 142,1 | 49,1 | 42 | 15 | 65 | 14 | 4 | 2,25 | |
| 99320020 MAX | 20 | 40 | 150 | 143,8 | 144,7 | 48,7 | 48 | 18 | 75 | 14 | 4 | 2,65 | |
| 99320025 MAX | 25 | 40 | 160 | 143,8 | 149,3 | 48,8 | 57 | 24 | 85 | 14 | 4 | 2,87 | |
| 99320032 MAX | 32 | 40 | 180 | 243 | 145 | 47,6 | 60 | 30 | 100 | 18 | 4 | 4,28 | |
| 99320040 MAX | 40 | 40 | 200 | 243 | 153,5 | 48,1 | 76 | 40 | 110 | 18 | 4 | 5,6 | |
| 99320050 MAX | 50 | 40 | 250 | 243 | 159,5 | 47,6 | 89 | 48 | 125 | 18 | 4 | 7,1 | |
| 99320065 MAX | 65 | 16 | 270 | 277,6 | 193,8 | 69,4 | 114 | 63 | 145 | 18 | 4 | 10,26 | |
| 99320080 MAX | 80 | 16 | 290 | 277,6 | 203,5 | 69,6 | 133 | 75 | 160 | 18 | 4 | 12,94 | |
| 99320100 MAX | 100 | 16 | 350 | 526 | 179,3 | 61,3 | 180 | 100 | 180 | 18 | 8 | 20,94 | |
| 29320125 MAX iso | 125 | 16 | 380 | 526 | 195,8 | 58,3 | 219 | 125 | 210 | 18 | 8 | 28,47 | |
| 99320150 MAX iso | 150 | 16 | 410 | 526 | 216 | 51,5 | 273 | 148 | 240 | 22 | 8 | 35,97 | |
| 99320200 MAX iso | 200 | 16 | 530 | 1019,5 | 275,6 | 51,8 | 351 | 200 | 295 | 22 | 12 | 76,75 | |
| 99320250 MAX iso | 250** | 16 | 750 | - | 431,5 | 103,5 | 426 | 240 | 355 | 26 | 12 | 145,00 | |
| 99320300 MAX iso | 300** | 16 | 750 | - | 512 | 101 | 530 | 300 | 410 | 26 | 12 | 270,00 | |
| 99320350 MAX iso | 350** | 16 | 990 | - | 512 | 101 | 630 | 390 | 470 | 26 | 16 | 422,00 | |
| 99320400 MAX iso | 400** | 16 | 990 | - | 635 | 105 | 630 | 390 | 525 | 30 | 16 | 615,00 | |
| 99320500 MAX iso | 500** | 16 | 1017 | - | 695 | 104 | 820 | 500 | 650 | 33 | 20 | 940,50 |