Категории
Кран шаровой полнопроходной специальная серия MAX приварной
Характеристики
Макс. температура (Т) °С.: до +200 °С
Мин. температура (Т) °С.: до -60 °С (исп. ХЛ)
Класс герметичности: Класс «А» ГОСТ 9544-2015
Срок службы: 40 лет*
Гарантийный срок: 10 лет
Материалы корпуса: Сталь 09Г2С
Проход: Полнопроходной
Присоединение: приварное/приварное
Серия кранов с усовершенствованными техническими характеристиками. Передовые инженерные решения и высококачественные материалы обеспечивают максимальную надежность, долговечность и эффективность на трубопроводах с жидкими и газовыми средами
Рабочая среда:
Теплосетевая вода, нефтепродукты, ГСМ и другие рабочие среды, неагрессивные для материалов
деталей крана.
Краны имеют все необходимые сертификаты и разрешения
Уникальная конструкция ремонтопригодной горловины с эффектом самоуплотнения позволяет восстановить уплотнения без демонтажа шарового крана
Маркировка индивидуального номера крана наносится нестираемым способом согласно ГОСТ 4666-2015 и позволяет идентифицировать кран на протяжении всего срока службы
Конструкция крана испытана на герметичность в сложных условиях путем сжатия, растяжения и изгиба согласно международным нормам
Примечания:
Все краны до DN 250 включительно поставляются в комплекте с рукояткой. По заказу могут поставляться с редуктором. Краны DN 300 и более
поставляются в комплекте с механическим редуктором по умолчанию.
Iso – по умолчанию установлен iso-фланец
* При условии соблюдения правил эксплуатации.
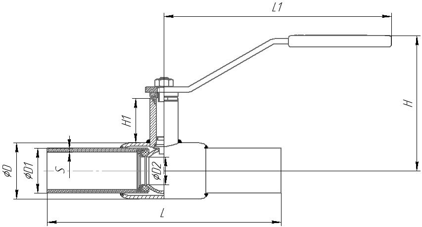
Модификации
| Артикул | DN | PN | L | L1 | H | H1 | D | D1 | D2 | S | Вес, кг | |
|---|---|---|---|---|---|---|---|---|---|---|---|---|
| 99220010 MAX | 10 | 40 | 210 | 143,8 | 138,8 | 45,8 | 42 | 17 | 10 | 3 | 0,68 | |
| 99220015 MAX | 15 | 40 | 210 | 143,8 | 142,1 | 49,1 | 42 | 22 | 15 | 3 | 0,76 | |
| 99220020 MAX | 20 | 40 | 230 | 143,8 | 144,7 | 48,7 | 48 | 27 | 18 | 3,5 | 1,03 | |
| 99220025 MAX | 25 | 40 | 230 | 143,8 | 149,3 | 48,8 | 57 | 32 | 24 | 3 | 1,21 | |
| 99220032 MAX | 32 | 40 | 260 | 243 | 145 | 47,6 | 60 | 42 | 30 | 4 | 2,19 | |
| 99220040 MAX | 40 | 40 | 260 | 243 | 153,5 | 48,1 | 76 | 48 | 40 | 3,5 | 2,55 | |
| 99220050 MAX | 50 | 40 | 300 | 243 | 159 | 47,6 | 89 | 57 | 48 | 4 | 3,57 | |
| 99220065 MAX | 65 | 25 | 360 | 277,6 | 194 | 69,4 | 114 | 76 | 63 | 4 | 5,73 | |
| 99220080 MAX | 80 | 25 | 370 | 277,6 | 203 | 69,6 | 133 | 89 | 75 | 5 | 7,77 | |
| 99220100 MAX | 100 | 25 | 330 | 526 | 179,3 | 61,3 | 180 | 108 | 100 | 5 | 13,15 | |
| 99220125 Iso MAX | 125 | 25 | 360 | 526 | 195,8 | 58,3 | 219 | 133 | 125 | 6 | 17,83 | |
| 99220150 Iso MAX | 150 | 25 | 390 | 526 | 216 | 51,5 | 273 | 159 | 148 | 6 | 23,46 | |
| 99220200 Iso MAX iso | 200 | 25 | 510 | 1019,5 | 275,6 | 51,8 | 351 | 219 | 200 | 8 | 60,84 | |
| 99220250 Iso MAX iso | 250** | 25 | 730 | - | 431,5 | 103,5 | 426 | 273 | 240 | 10 | 126,92 | |
| 99220300 Iso MAX iso | 300** | 16/25 | 730 | - | 512 | 101 | 530 | 325 | 300 | 10 | 243,4 | |
| 99220350 Iso MAX iso | 350** | 16/25 | 970 | - | 512 | 101 | 630 | 377 | 390 | 10 | 376,00 | |
| 99220400 Iso MAX iso | 400** | 16/25 | 970 | - | 635 | 105 | 630 | 426 | 390 | 10 | 454,00 | |
| 99220500 Iso MAX iso | 500** | 16/25 | 991 | - | 695 | 104 | 820 | 530 | 500 | 10 | 827,50 |