Каталог продукции

Категории

Продукция


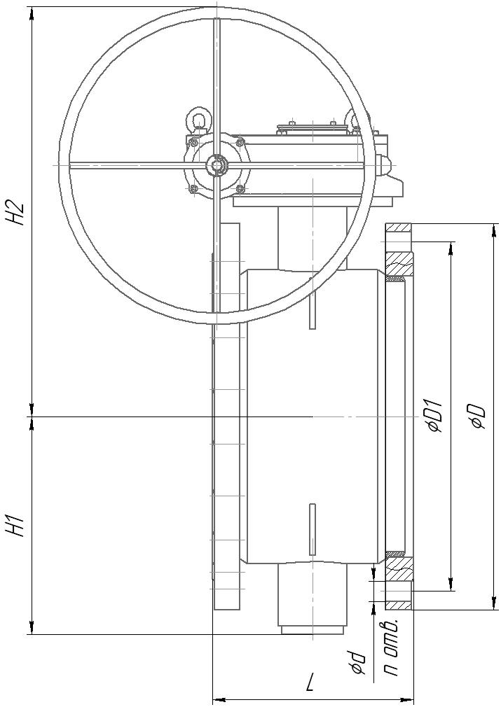
Поворотно-дисковый затвор трехэксцентриковый приварной

Характеристики

Макс. температура (Т) °С.: +200°С (НТ), +325°С (ВТ)

Мин. температура (Т) °С.: до -40 °С (исп. У), до -60 °С (исп. ХЛ)

Класс герметичности: Класс «А» ГОСТ 9544-2015

Срок службы: Не менее 30 лет

Гарантийный срок: 10 лет

Материалы корпуса: Сталь 20 / 09Г2С

Номинальное давление: 2,5 Мпа

Присоединение: Приварное

Исполнение: Низкотемпературное НТ (до +200°С), высокотемпературное ВТ (до +325°С)

Ресурс: Не менее 2 000 циклов

Управление: Правое / левое

Паспорт

Рабочая среда: 

Теплосетевая вода, нефтепродукты, ГСМ и другие жидкие среды.

Номинальный диаметр от DN 150 DN 1200

Исполнение: низкотемпературное (НТ): до +200 С (пар до +150Сº), высокотемпературное (ВТ): до +325Сº

· Маркировка индивидуального номера затвора нестираемым методом

· Конструкция затвора испытана в сложных условиях путем сжатия, растяжения и изгиба

· Рассчитаны на эксплуатацию в агрессивных средах и при высоких нагрузках

Ключевые особенности конструкции:

· Третий эксцентрик обеспечивает нулевую утечку при минимально возможном моменте затяжки.

· Уплотнение «металл по металлу» в сочетании с третьим эксцентриком гарантирует плавное открытие диска — без трения даже при максимальном перепаде давления.

· Защита от заклинивания — конструкция третьего эксцентрика предотвращает заклинивание диска, обеспечивая надёжность работы затвора.

Установка на трубопровод

Возможность монтажа затворов предусмотрена как на горизонтальных, так и на вертикальных трубопроводах. На горизонтальных участках рекомендуется устанавливать затворы так, чтобы шпиндель располагался горизонтально. Допустимо размещение под углом 45°. В соответствии с ГОСТ Р 53672 применять затворы в качестве опоры для трубопровода запрещено

Затворы сохраняют работоспособность в температурном диапазоне от −60 °C до +325 °C благодаря продуманному выбору материалов для ключевых элементов: корпуса, патрубков, шпинделя и горловины.

Повышенная прочность и износостойкость

В поворотных затворах применяется уплотнение типа «металл по металлу», которое гарантирует плавное открытие диска без трения даже при максимальном перепаде давления. Штампованное нержавеющее кольцо за счёт особой формы плотно и равномерно прилегает к седлу по всей окружности в момент закрытия, обеспечивая двустороннюю герметичность потока. Конструкция предусматривает замену прижимного кольца, что существенно повышает ремонтопригодность узла

Удобство монтажа

Концы патрубков и зеркала фланцев затворов всех диаметров не окрашиваются — это сделано для улучшения качества монтажа. Такой подход помогает избежать трудоёмкой очистки от краски и не снижает качества сварного шва.

Модификации

Артикул DN PN Ширина (наружный диаметр), мм Высота, мм Длина, мм Масса без привода (не более), кг
ЗД.3.82.20.150.25 150 25 159 350 210 20
ЗД.3.82.20.200.25 200 25 219 430 230 30
ЗД.3.82.20.250.25 250 25 273 490 250 55
ЗД.3.82.20.300.25 300 25 325 625 270 80
ЗД.3.82.20.350.25 350 25 377 675 290 125
ЗД.3.82.20.400.25 400 25 426 740 310 150
ЗД.3.82.20.500 500 25 530 890 350 225
ЗД.3.82.20.600.25 600 25 630 1040 390 360
ЗД.3.82.20.700 700 25 720 1175 430 485
ЗД.3.82.20.800 800 25 820 1350 470 625
ЗД.3.82.20.900 900 25 920 1460 510 975
ЗД.3.82.20.1000 1000 25 1020 1565 550 1290
ЗД.3.82.20.1200 1200 25 1220 1790 630 1560

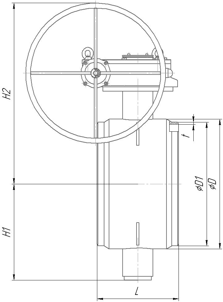
Поворотно-дисковый затвор трехэксцентриковый фланцевый

Характеристики

Макс. температура (Т) °С.: +200°С (НТ), +325°С (ВТ)

Мин. температура (Т) °С.: до -40 °С (исп. У), до -60 °С (исп. ХЛ)

Класс герметичности: Класс «А» ГОСТ 9544-2015

Срок службы: Не менее 30 лет

Гарантийный срок: 10 лет

Материалы корпуса: Сталь 20 / 09Г2С

Присоединение: Фланцевое

Номинальное давление: 1,6 / 2,5

Исполнение: Низкотемпературное НТ (до +200°С), высокотемпературное ВТ (до +325°С)

Ресурс: Не менее 2 000 циклов

Управление: Правое / левое

Паспорт

Рабочая среда: 

Теплосетевая вода, нефтепродукты, ГСМ и другие жидкие среды.

Номинальный диаметр от DN 150 DN 1200

Исполнение: низкотемпературное (НТ): до +200 С (пар до +150Сº), высокотемпературное (ВТ): до +325Сº

· Маркировка индивидуального номера затвора нестираемым методом

· Конструкция затвора испытана в сложных условиях путем сжатия, растяжения и изгиба

· Рассчитаны на эксплуатацию в агрессивных средах и при высоких нагрузках

Ключевые особенности конструкции:

· Третий эксцентрик обеспечивает нулевую утечку при минимально возможном моменте затяжки.

· Уплотнение «металл по металлу» в сочетании с третьим эксцентриком гарантирует плавное открытие диска — без трения даже при максимальном перепаде давления.

· Защита от заклинивания — конструкция третьего эксцентрика предотвращает заклинивание диска, обеспечивая надёжность работы затвора.

Установка на трубопровод

Возможность монтажа затворов предусмотрена как на горизонтальных, так и на вертикальных трубопроводах. На горизонтальных участках рекомендуется устанавливать затворы так, чтобы шпиндель располагался горизонтально. Допустимо размещение под углом 45°. В соответствии с ГОСТ Р 53672 применять затворы в качестве опоры для трубопровода запрещено

Затворы сохраняют работоспособность в температурном диапазоне от −60 °C до +325 °C благодаря продуманному выбору материалов для ключевых элементов: корпуса, патрубков, шпинделя и горловины.

Повышенная прочность и износостойкость

В поворотных затворах применяется уплотнение типа «металл по металлу», которое гарантирует плавное открытие диска без трения даже при максимальном перепаде давления. Штампованное нержавеющее кольцо за счёт особой формы плотно и равномерно прилегает к седлу по всей окружности в момент закрытия, обеспечивая двустороннюю герметичность потока. Конструкция предусматривает замену прижимного кольца, что существенно повышает ремонтопригодность узла

Удобство монтажа

Концы патрубков и зеркала фланцев затворов всех диаметров не окрашиваются — это сделано для улучшения качества монтажа. Такой подход помогает избежать трудоёмкой очистки от краски и не снижает качества сварного шва.

Модификации

Артикул DN PN Ширина (наружный диаметр), мм Высота, мм Длина, мм Масса без привода (не более), кг
ЗД.3.83.20.150.16 150 16 280 350 230 40
ЗД.3.84.20.150.25 150 25 300 350 230 47
ЗД.3.83.20.200.16 200 16 335 430 250 60
ЗД.3.84.20.200.25 200 25 360 430 250 65
ЗД.3.83.20.250.16 250 16 405 490 270 80
ЗД.3.84.20.250.25 250 25 425 490 270 85
ЗД.3.83.20.300.16 300 16 460 625 290 155
ЗД.3.84.20.300.25 300 25 485 625 290 160
ЗД.3.83.20.350.16 350 16 520 675 310 200
ЗД.3.84.20.350.25 350 25 550 675 310 225
ЗД.3.84.20.400.25 400 25 610 740 340 275
ЗД.3.83.20.400.16 400 16 580 740 340 250
ЗД.3.83.20.500.16 500 16 710 890 380 395
ЗД.3.84.20.500.25 500 25 730 890 380 445
ЗД.3.83(84).20.600.16(25) 600 16/25 840 1040 420 590/615
ЗД.3.83.20.700.16 700 16 910 1175 460 805
ЗД.3.84.20.700.25 700 25 960 1175 460 890
ЗД.3.83.20.800.16 800 16 1020 1350 500 1490
ЗД.3.84.20.800.25 800 25 1075 1350 500 1645
ЗД.3.83.20.900.16 900 16 1120 1460 540 1550
ЗД.3.83.20.1000.16 1000 16 1255 1565 580 1945
ЗД.3.83.20.1200.16 1200 16 1485 1790 660 2740